Проект​ы домов  до 100​ м²

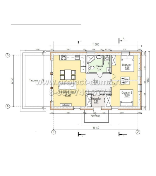
Д- 062

Жилой дом. 1 этаж. Керамзитобетон.
Площадь застройки дома - 78​м²
Площадь отапливаемых помещений - 61,5​м²
Площадь кровли - 95​м²

Основные конструкции и материалы:
  • /
    Фундамент под домом - монолитный ростверк на сваях
  • /
    Нулевое перекрытие - утепленная стяжка по грунту с теплым полом
  • /
    Внешние несущие стены: керамзитобетонный блок ш290мм, мин вата 100мм,
  • /
    вент.зазор 20-25мм, внешняя отделка фасада - провначтил или фальц, деревянный
  • /
    планкер.
  • /
    Перегородки: силикатный кирпич ш88/120мм
  • /
    Перекрытие 1 этажа - деревянные лаги с утеплением 200мм
  • /
    Крыша - деревянной конструкции, с утеплением 200мм, покрытие кровли - профнастил. 
Стоимость указана за разделы АР и КР

12 000 ₽

Д-078

Жилой дом. 1 этаж. Газобетон.
Площадь застройки дома - 78м²
Общая площадь дома - 73​м² 
Площадь помещений 62​м²

Основные конструкции и материалы:
  • /
    Фундамент под домом - ленточный
  • /
    Стены газобетон 400 и 300мм.
  • /
    Нулевое перекрытие - стяжка по грунту.
  • /
    Перекрытие 1 этажа - лаги с утеплением 200мм. Крыша 2х скатная-покрытие кровли металлочерепица. 
Стоимость указана за разделы АР и КР

12 000 ₽

Д-0871

Жилой дом. 1 этаж. Газобетон.
Общая площадь дома - 106​м²
Площадь отапливаемых помещений - 87​м²
Высота этажа в чистоте 2,8​м²

Основные конструкции и материалы:
  • /
    Фундамент под домом - ленточный монолитный
  • /
    Нулевое перекрытие - утепленная стяжка по грунту с теплым полом.
  • /
    Несущие стены выполнены из газобетона ш.300мм.
  • /
    Утепление по фасаду 50мм.
  • /
    Перегородки выполнены из газобетона ш100 и 150мм
  • /
    Перекрытие 1 этажа - деревянные лаги с утеплением 200мм
  • /
    Крыша - деревянные стропила и ригели, покрытие кровли - металлочерепица.
Стоимость указана за разделы АР и КР

15 000 ₽

Д-0872

Жилой дом. 1 этаж. Газобетон.
Общая площадь дома - 106​м²
Площадь отапливаемых помещений - 87​м²
Высота этажа в чистоте 2,8​м²

Основные конструкции и материалы:
  • /
    Фундамент под домом - ленточный монолитный
  • /
    Нулевое перекрытие - утепленная стяжка по грунту с теплым полом.
  • /
    Несущие стены выполнены из газобетона ш.400мм.
  • /
    Облицовка-кирпич.
  • /
    Перегородки выполнены из газобетона ш100 и 150мм
  • /
    Перекрытие 1 этажа - деревянные лаги с утеплением 200мм
  • /
    Крыша - деревянные стропила и ригели, покрытие кровли - металлочерепица.
Стоимость указана за разделы АР и КР

15 000 ₽

Д-0873

Жилой дом. 1 этаж. Газобетон.
Площадь застройки дома - 125​м²
Площадь помещений (отапливаемая) - 87,3​м²
Площадь кровли - 173​м²

Основные конструкции и материалы:
  • /
    Фундамент под домом - ленточный монолитный
  • /
    Нулевое перекрытие - стяжка с теплым полом по грунту
  • /
    Внешние стены выполнены из газобетонных блоков 375мм, с облицовкой кирпичем 120мм
  • /
    Внутренние несущие стены выполнены из газобетонных блоков 300мм
  • /
    Перегородки выполнены из газобетонных блоков 100 и 150мм
  • /
    Перекрытие первого этажа - деревянные лаги с утеплением 200мм
  • /
    Крыша - деревянной конструкции, покрытие кровли - металлочерепица.
Стоимость указана за разделы АР и КР

10 000 ₽

Оставьте заявку и мы свяжемся с вами в ближайшее время

  ​Согласен на обработку персональных данных

Спасибо! Ваше сообщение отправлено.
Отправка не удалась. Пожалуйста, исправьте ошибки и попробуйте еще раз.