Проекты домов от 200 м²

Д-209

Жилой дом. 2 этажа. Газобетон.
Площадь застройки дома - 220​м²
Общая площадь здания - 265,4​м²
Площадь помещений (отапливаемая) - 209,12​м²
Площадь кровли - 184​м² (+ 84м² плоская кровля)

Основные конструкции и материалы:
  • /
    Фундамент под домом - ленточный монолитный с кирпичным цоколем.
  • /
    Внешние несущие стены выполнены из газобетонного блока ш400мм
  • /
    Внутренние несущие стены выполнены из кирпича ш380мм
  • /
    Перегородки выполнены из газобетонного блока ш100мм
  • /
    Перекрытие фундамента - утепленная армированная стяжка
  • /
    Перекрытие 1 этажа этажа - ж/б плиты перекрытия
  • /
    Перекрытие 2 этажа - деревянные лаги с утеплением 200мм
  • /
    Крыша - деревянной конструкции (без утепления), покрытие кровли - гибкая черепица
Стоимость указана за разделы АР и КР

30 000 ₽

Д-222

Жилой дом. 2 этажа. Газобетон.
Площадь застройки дома - 117​м²
Общая площадь дома - 222,1​м²
Площадь помещений (отапливаемая) - 208,1м²
Площадь кровли - 172​м²

Основные конструкции и материалы:
  • /
    Фундамент - ленточный сборный ж/б
  • /
    Несущие стены ш380мм выполнены из керамзитобетонных блоков
  • /
    Перегородки ш100-120мм выполнены из газобетона/кирпича
  • /
    Перекрытие фундамента и 1 этажа - ж/б пустотные плиты перекрытия
  • /
    Крыша - деревянной конструкции, покрытие кровли - металлочерепица.
Стоимость указана за разделы АР и КР

35 000 ₽

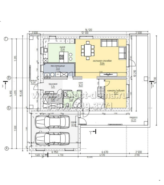
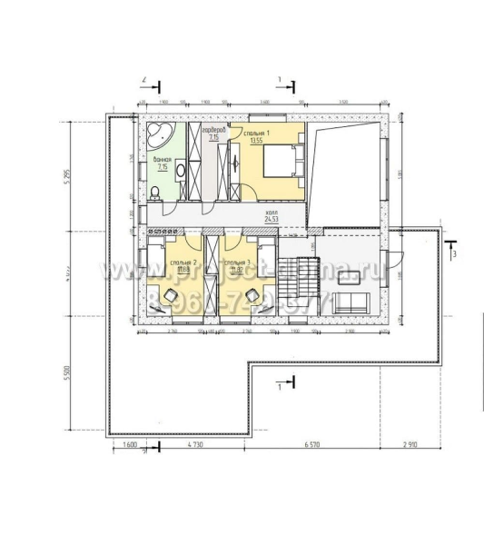
Д-223

Жилой дом. 2 этажа. Газобетон.
Площадь застройки дома - 205​м²
Общая площадь дома - 327,4​м²
Площадь помещений (отапливаемая) - 223,3​м²
Площадь кровли - 158​м²

Основные конструкции и материалы:
  • /
    Фундамент под домом - сборный ж/б.
  • /
    Внешние стены выполнены из газобетонных блоков 400мм.
  • /
    Внутренние несущие стены выполнены из газобетонных блоков 300-400мм
  • /
    Перегородки выполнены из газобетонных блоков 100-150мм
  • /
    Межэтажные перекрытия - монолитные, толщиной 200мм
  • /
    Крыша - плоской конструкции, с покрытием из рулонных материалов
Стоимость указана за разделы АР и КР

35 000 ₽

Оставьте заявку и мы свяжемся с вами в ближайшее время

  ​Согласен на обработку персональных данных

Спасибо! Ваше сообщение отправлено.
Отправка не удалась. Пожалуйста, исправьте ошибки и попробуйте еще раз.