Проекты домов 150 - 200 м²

Д-1552

Жилой дом. 2 этажа. Газобетон.
Площадь застройки дома - 144​м²
Общая площадь дома - 161,4​м²
Площадь помещений - 138,8​м²
Площадь кровли - 210​м²

Основные конструкции и материалы:
  • /
    Фундамент под домом - ленточный монолитный на сваях.
  • /
    Полй 1 этажа -утепленная стяжка по грунту
  • /
    Перекрытие межэтажное - пустотные плиты перекрытия 220мм
  • /
    Внешние стены - газобетон 400мм, лицевой керамический кирпич 120мм
  • /
    Внутренние несущие стены - газобетон 400мм
  • /
    Перегородки - газобетон 100мм
  • /
    Крыша - деревянной конструкции, утепление 200мм, покрытие кровли - металлочерепица
Стоимость указана за разделы АР и КР

23 000 ₽

Д-1581

Жилой дом. 1 этаж. Газобетон.
Площадь застройки дома - 190​м²
Общая площадь - 158,2​м²
Площадь отапливаемых помещений - 118,7​м²
Площадь кровли - 251​м²

Основные конструкции и материалы:
  • /
    Фундамент под домом - свайно-ростверковый
  • /
    Нулевое перекрытие - полы по грунту
  • /
    Перекрытие 1 этажа - деревянные луги с утеплением 200мм
  • /
    Внешние несущие стены ш400мм выполнены из газобетонного блока
  • /
    Отделка фасада - штукатурка, декоративный камень
  • /
    Внутренние несущие стены ш30мм выполнены из газобетонного блока
  • /
    Перегородки ш100мм выполнены из газобетонного блока
  • /
    Крыша 2х скатная, стропила и мауэрлат деревянные.
  • /
    Покрытие кровли - металлочерепица.
Стоимость указана за разделы АР и КР

24 000 ₽

Д-162

Жилой дом. 1 этаж. Газобетон.
Площадь застройки дома - 195​м²
Общая площадь дома - 162,3​м²
Площадь помещений (отапливаемая) - 142,0​м²
Площадь кровли - 262​м²

Основные конструкции и материалы:
  • /
    Фундамент под домом - ленточный монолитный
  • /
    Нулевое перекрытие - утепленная стяжка по грунту
  • /
    Внешние несущие стены выполнены из газобетонного блока ш400мм
  • /
    Внутренние несущие стены выполнены из газобетонного блока ш300мм
  • /
    Перегородки выполнены из газобетонного блока ш100/150мм
  • /
    Перекрытие первого этажа - деревянные лаги с утеплением 200мм
  • /
    Крыша - деревянной конструкции (без утепления), покрытие - профнастил
Стоимость указана за разделы АР и КР

24 000 ₽

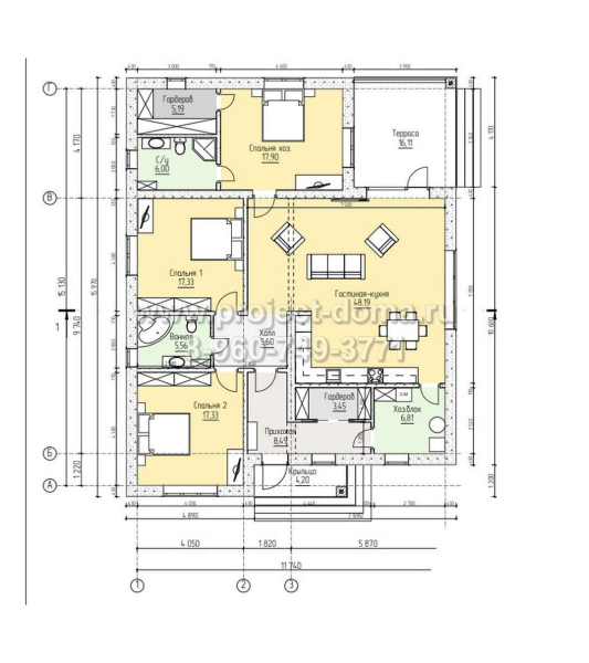
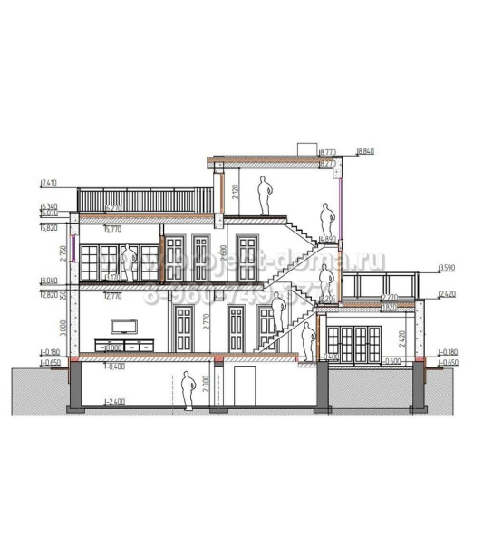
Д-185

Жилой дом. 2 этажа. Газобетон.
Площадь застройки дома - 150​м²
Общая площадь дома - 184,6​м²
Площадь отапливаемых помещений - 146,1​м²
Площадь кровли - 118​м²

Основные конструкции и материалы:
  • /
    Фундамент под домом - сборный ленточный
  • /
    Внешние внутреннее несущие стены выполнены из газобетонных блоков 400мм.
  • /
    Перегородки выполнены из газобетонных блоков 100/150мм.
  • /
    Межэтажные перекрытия - ж/б пустотные плиты перекрытия 220мм
  • /
    Крыша - плоской конструкции, с покрытием из рулонных материалов.
Стоимость указана за разделы АР и КР

29 000 ₽

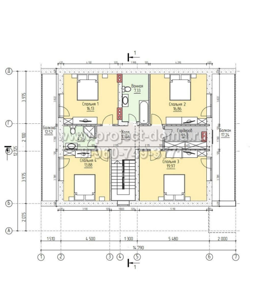
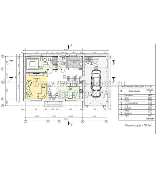
Д-194

Жилой дом. 2 этажа. Газобетон.
Площадь застройки дома - 175​м²
Общая площадь дома - 271,2​м²
Площадь помещений (отапливаемая) - 193,5м²
Площадь кровли - 178​м²

Основные конструкции и материалы:
  • /
    Фундамент под домом - свайно-ростверковый
  • /
    Нулевое перекрытие - утепленная стяжка по грунту
  • /
    Внешние несущие стены выполнены из газобетонного блока ш400мм
  • /
    Внутренние несущие стены выполнены из газобетонного блока ш300мм
  • /
    Перегородки выполнены из газобетонного блока ш100мм
  • /
    Перекрытие первого этажа - ж/б плиты перекрытие 220мм
  • /
    Крыша - деревянной конструкции с утеплением 200мм
Стоимость указана за разделы АР и КР

30 000 ₽

Д-196

Жилой дом. 2 этажа. Керамический камень.
Площадь застройки дома - 140​м²
Общая площадь дома - 194,9​м²
Площадь помещений (отапливаемая) - 184,5​м²
Площадь кровли - 180​м²

Основные конструкции и материалы:
  • /
    Фундамент под домом - ленточный монолитный
  • /
    Нулевое перекрытие - утепленная стяжка по грунту
  • /
    Несущие стены выполнены из крупноформатного керамического камня (ш.380мм). отделка фасада - облицовка керамическим кирпичем.
  • /
    Перегородки выполнены из крупноформатного керамического камня (ш.120мм)
  • /
    Перекрытие первого этажа - ж/б плиты перекрытия
  • /
    Перекрытие второго этажа - деревянные лаги с утеплением 200мм
  • /
    Крыша - деревянной конструкции (без утепления), покрытие - металлочерепица
Стоимость указана за разделы АР и КР

30 000 ₽

Оставьте заявку и мы свяжемся с вами в ближайшее время

  ​Согласен на обработку персональных данных

Спасибо! Ваше сообщение отправлено.
Отправка не удалась. Пожалуйста, исправьте ошибки и попробуйте еще раз.