Проекты домов 100​ - 150 м²

Д-100

Жилой дом. 1 этаж. Газобетон.
Площадь застройки дома - 126​м²
Общая площадь - 100,1​м²
Площадь отапливаемых помещений - 97,2​м²
Площадь кровли - 166​м²

Основные конструкции и материалы:
  • /
    Фундамент под домом - монолитный ленточный
  • /
    Перекрытие фундамента - утепленная армированная стяжка
  • /
    Перекрытие 1 этажа - деревянные лаги с утеплением 200мм
  • /
    Внешние несущие стены выполнены из газобетона ш300мм утепление 100мм.
  • /
    Внутренние несущие стены выполнены из газобетона ш300мм
  • /
    Перегородки выполнены из газобетона ш100мм
  • /
    Крыша 2-х скатная.
  • /
    Покрытие кровли - металлочерепица
Стоимость указана за разделы АР и КР

16 000 ₽

Д-125

Жилой дом. 2 этажа. Газобетон
Площадь застройки дома - 93​м²
Общая площадь дома - 124,9​м²
Площадь помещений - 109,4​м²
Площадь кровли - 150​м²

Основные конструкции и материалы:
  • /
    Фундамент под домом - ленточный монолитный.
  • /
    Пол 1 этажа -утепленная стяжка по грунту
  • /
    Перекрытие межэтажное - пустотные плиты перекрытия 220мм
  • /
    Внешние стены - газобетон 400мм, штукатурка
  • /
    Внутренние несущие стены - газобетон 400мм
  • /
    Перегородки - газобетон 100мм
  • /
    Крыша - деревянной конструкции, утепление 200мм, покрытие кровли - металлочерепица
Стоимость указана за разделы АР и КР

19 000 ₽

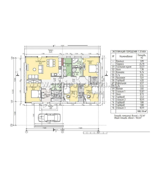
Д-132

Жилой дом. 1 этаж. Газобетон.
Площадь застройки дома - 222​м²
Общая площадь дома - 160​м²
Площадь помещений - 132​м²
Площадь кровли - 180​м²

Основные конструкции и материалы:
  • /
    Дом устанавливается на монолитный ленточный фундамент
  • /
    Наружние и внутренние несущие стены и перегородки - газобетон,
  • /
    шириной 400, 300 и 100мм
  • /
    Перекрытие 1 этажа - ж/б плиты.
  • /
    Конструкция крыши - ж/б плиты, утепление, стяжка, гидроизоляция.
Стоимость указана за разделы АР и КР

20 000 ₽

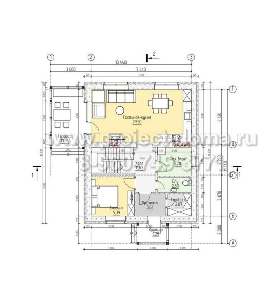
Д-141

Жилой дом. 2 этажа. Газобетон.
Площадь застройки дома - 110​м²
Общая площадь здания - 141,1​м²
Площадь помещений (отапливаемая) - 125,9​м²
Площадь кровли - 155​м²

Основные конструкции и материалы:
  • /
    Фундамент под домом - сборный ж/б
  • /
    Несущие стены выполнены из газобетонного блока 375мм
  • /
    Перегородки выполнены из газобетонного блока 100мм
  • /
    Перекрытие фундамента и 1 этажа этажа - ж/б плиты перекрытия
  • /
    Перекрытие 2 этажа - деревянные лаги с утеплением 200мм
  • /
    Крыша - деревянной конструкции (без утепления), покрытие кровли - металлочерепица.
Стоимость указана за разделы АР и КР

23 000 ₽

Д-145

Жилой дом. 1 этаж. Керамический камень.
Площадь застройки дома - 230м²
Общая площадь - 187,9​м²
Площадь помещений (отапливаемая) - 145,1​м²
Площадь кровли - 264​м²

Основные конструкции и материалы:
  • /
    Фундамент под домом - ленточный монолитный
  • /
    Нулевое перекрытие - стяжка с теплым полом по грунту
  • /
    Внешние стены ш.380мм выполнены из керамического камня, с утепление 50мм.
  • /
    Внутренние несущие стены ш.250мм выполнены из керамического камня
  • /
    Перегородки ш120мм из кирпича и керамического камня
  • /
    Перекрытие первого этажа - деревянные лаги с утеплением 200мм
  • /
    Крыша - деревянной конструкции, покрытие кровли - металлочерепица.
Стоимость указана за разделы АР и КР

22 000 ₽

Оставьте заявку и мы свяжемся с вами в ближайшее время

  ​Согласен на обработку персональных данных

Спасибо! Ваше сообщение отправлено.
Отправка не удалась. Пожалуйста, исправьте ошибки и попробуйте еще раз.